/assets/uploads/images/gallery/2025/banner_project.webp

Gold Coast Vung Tau 联排别墅

联排别墅

监控

Gold Coast Vung Tau 项目的联排别墅区属于国际化滨海城市社区,采用地中海风格设计,提供与自然和谐共生的奢华生活空间。

image-map-original
image-map
icon map content

总体规划

 

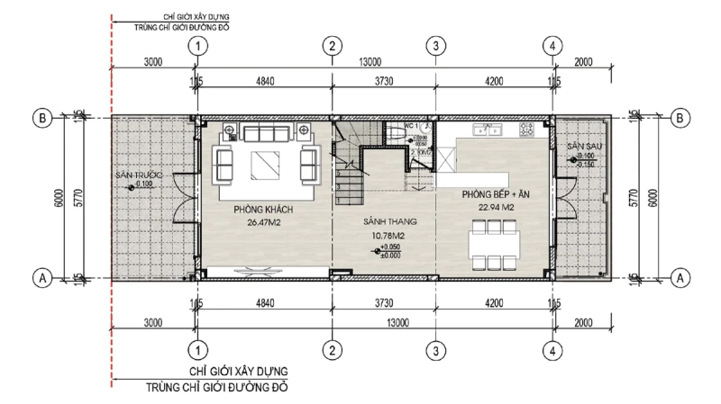
联排别墅提供多种面积选择,范围从 108㎡ 到 290㎡,设计为 三层楼加屋顶露台。交付时为外部精装修,内部毛坯状态。

国际标准滨海城市中的可持续投资与高端生活机会。

 

Gold Coast Vung Tau 被公认为高端度假型城市社区,提供现代、舒适、贴近自然的生活空间,同时具备巨大的未来盈利潜力。

土地面积

土地面积

从 108 平方米 – 290 平方米

建筑密度约为

建筑密度约为

50% – 71%

楼层数量

楼层数量

三层一阁楼

建筑面积

建筑面积

从 78 平方米

总建筑面积

总建筑面积

从 230.4 平方米

效果图

Gold Coast Vung Tau – 商铺(联排别墅)产品详细介绍

查看地图

该项目灵感源自地中海建筑。凭借自由奔放且极具视觉冲击力的设计风格,Gold Coast 在第一眼就能给客户和投资者留下深刻印象。独特的细节设计、黄金比例的布局以及精致的线条,共同塑造了项目独一无二的魅力。

Chat AI
Chat AI
Chat AI
Xin chào! Chat AI có thể giúp được gì cho bạn?
14:38